There are no reviews
 
 
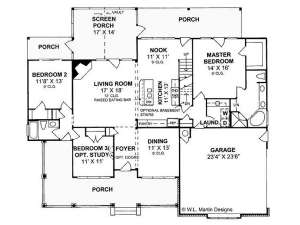
Are you looking for relaxed living in a one-story design? Try this country house plan where a wrap-around porch and cheerful dormers will take you back to a simpler place in time. Step inside to find a trio of windows filling the dining room with natural light, the site of many holiday meals in the years to come. Beyond, the living room sports a corner fireplace and a 12’ ceiling as it combines with the island kitchen and cheerful breakfast nook creating an open floor plan. Outdoor lovers will appreciate the rear porches and screened porch extending the living areas offering a space for grilling, relaxation and outdoor meals on pleasant evenings. Split bedrooms ensure privacy to the master bedroom flaunting a walk-in closet and full-featured bath complete with window soaking tub. On the other side of the home, two bedrooms share a full bath. Don’t miss the optional game room above the double garage, a space that is sure to provide hours of entertainment for everyone. Abounding with all the comforts and necessities for solid family living, this comfortable ranch home plan will be a family favorite.
| Heated Square Feet | |
| First Floor | 1838 | 
| Total | 1838 | 
| Unheated Square Feet | |
| Bonus | 394 | 
| Bedrooms | 2 | 
| Full Bathrooms | 2 | 
| Width | 65 ft. 0 in. | 
| Depth | 56 ft. 0 in. | 
| Approximate Height | 24 ft. 0 in. | 
| Ceiling Height | |
| First Floor | 9 ft. 0 in. | 
| Roof Framing | 
 | 
| Foundation Options | 
 | 
| Exterior Wall Options | 
 | 
| Kitchen Features | 
 | 
| Bedroom Features | 
 | 
| Interior Features | 
 | 
| Exterior Features | 
 | 
| Special Features | 
 | 
| Garage Features | 
 | 
Are you looking for relaxed living in a one-story design? Try this country house plan where a wrap-around porch and cheerful dormers will take you back to a simpler place in time. Step inside to find a trio of windows filling the dining room with natural light, the site of many holiday meals in the years to come. Beyond, the living room sports a corner fireplace and a 12’ ceiling as it combines with the island kitchen and cheerful breakfast nook creating an open floor plan. Outdoor lovers will appreciate the rear porches and screened porch extending the living areas offering a space for grilling, relaxation and outdoor meals on pleasant evenings. Split bedrooms ensure privacy to the master bedroom flaunting a walk-in closet and full-featured bath complete with window soaking tub. On the other side of the home, two bedrooms share a full bath. Don’t miss the optional game room above the double garage, a space that is sure to provide hours of entertainment for everyone. Abounding with all the comforts and necessities for solid family living, this comfortable ranch home plan will be a family favorite.
PDF and CAD files are delivered by email, and have no shipping and handling cost.
| Continental US | Canada | AK/HI | *International | |
|---|---|---|---|---|
| Regular 8 - 12 business days | $25 | $45 | n/a | n/a | 
| Priority 3 - 4 business days | $40 | $90 | $55 | n/a | 
| Express 1 - 2 business days | $55 | n/a | n/a | n/a | 
The HousePlanShop, LLC (THPS) delivers an outstanding design collection composed of many of the top-selling house plans created by several leading residential designers and architects throughout the United States and Canada. We know building a new home is exciting! Choosing the right house plan is one of the first and most important steps in the building process. However, we understand our customers do not always have time to visit several house plan websites or page through numerous catalogs and brochures. So, we have done quite a bit of work for you! We believe BIGGER is not always BETTER. We have already eliminated the less popular designs, so our customers will not waste time sorting through all of them. This saves valuable time for our customers that can now be spent moving forward with the building process.
By publishing house plans that are the best of the best along with some unique plans that might not be found elsewhere, we provide our customers with a manageable collection of house plans from which to choose. Additionally, we offer various ways to search our house plan collection including a Plan Search tool and an opportunity to browse all Architectural Plan Styles, New House Plans, a Photo Collection, and Current Trends. THPS offers a variety of services and special features to help you with the house plan buying experience such as our Favorites feature, Modification Service, and Resource Section. Finally, THPS delivers top-notch customer service. Our staff has been in the stock house plan business and serving the public for over 50 years. We are committed to providing an exceptional collection of house plans and excellent service as we help you begin your home building journey.
Are you sure you want to perform this action?