There are no reviews
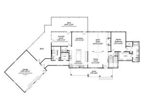
Retirees need to look at this small and affordable, empty-nester house plan! Fashioned with a splendid mix of country and Craftsman styling, this ranch home displays a rustic, yet welcoming look. The main level offers 1701 square feet of living space with an unfinished walkout basement and a two-car garage. For those who love the great outdoors, you’ll appreciate the sweeping, covered front porch and expansive rear deck and screened porch. All offer opportunities two relax and take in the sights and sounds of nature. Additionally, the rear of the home is loaded with windows making the most panoramic views of surrounding mountains and lakes. The floor plan features open gathering spaces with the great room and formal dining room coming together under a vaulted ceiling, contributing to the sense of spaciousness. A fireplace surrounded with built-ins adds a cozy touch of warmth to family get-togethers and holiday parties. The well-appointed kitchen boasts a huge island and an oversized walk-in pantry as it adjoins the sunny breakfast nook. The laundry room and a half bath polish off the left side of the home. Your master bedroom is secluded for privacy on the right side of the home where you’ll enjoy a large walk-in closet and luxurious bath outfitted with double bowl vanity, soaking tub, and separate shower. This floor plan offers all the conveniences of one-story living that most retirees are looking for. But there’s still more! If you enjoy the kids coming home on the weekends or sleepovers with the grandkids, consider finishing the basement. The lower level offers two optional bedrooms, a full bath, and a huge optional recreation room. Don’t miss the unfinished storage space. Perfect for a hilly or sloping lot with plenty of scenery, this mountain house plan works well for empty-nesters!
| Heated Square Feet | |
| First Floor | 1701 |
| Total | 1701 |
| Unheated Square Feet | |
| Bonus | 1377 |
| Garage | 581 |
| Bedrooms | 1 |
| Full Bathrooms | 1 |
| Half Bathrooms | 1 |
| Width | 73 ft. 0 in. |
| Depth | 30 ft. 0 in. |
| Approximate Height | 21 ft. 6 in. |
| Ceiling Height | |
| First Floor | 9 ft. 0 in. |
| Lower Level | 9 ft. 0 in. |
| Roof Pitch | 10/12 Main |
| Roof Pitch | 10/12 Front Gable |
| Roof Pitch | 10/12 Rear Gables |
| Roof Pitch | 10/12 Garage |
| Roof Pitch | 5/12 Front Porch |
| Roof Framing |
|
| Foundation Options |
|
| Exterior Wall Options |
|
| Kitchen Features |
|
| Bedroom Features |
|
| Interior Features |
|
| Exterior Features |
|
| Special Features |
|
| Garage Features |
|
Retirees need to look at this small and affordable, empty-nester house plan! Fashioned with a splendid mix of country and Craftsman styling, this ranch home displays a rustic, yet welcoming look. The main level offers 1701 square feet of living space with an unfinished walkout basement and a two-car garage. For those who love the great outdoors, you’ll appreciate the sweeping, covered front porch and expansive rear deck and screened porch. All offer opportunities two relax and take in the sights and sounds of nature. Additionally, the rear of the home is loaded with windows making the most panoramic views of surrounding mountains and lakes. The floor plan features open gathering spaces with the great room and formal dining room coming together under a vaulted ceiling, contributing to the sense of spaciousness. A fireplace surrounded with built-ins adds a cozy touch of warmth to family get-togethers and holiday parties. The well-appointed kitchen boasts a huge island and an oversized walk-in pantry as it adjoins the sunny breakfast nook. The laundry room and a half bath polish off the left side of the home. Your master bedroom is secluded for privacy on the right side of the home where you’ll enjoy a large walk-in closet and luxurious bath outfitted with double bowl vanity, soaking tub, and separate shower. This floor plan offers all the conveniences of one-story living that most retirees are looking for. But there’s still more! If you enjoy the kids coming home on the weekends or sleepovers with the grandkids, consider finishing the basement. The lower level offers two optional bedrooms, a full bath, and a huge optional recreation room. Don’t miss the unfinished storage space. Perfect for a hilly or sloping lot with plenty of scenery, this mountain house plan works well for empty-nesters!
PDF and CAD files are delivered by email, and have no shipping and handling cost.
| Continental US | Canada | AK/HI | *International | |
|---|---|---|---|---|
| Regular 8 - 12 business days | $25 | $105 | n/a | n/a |
| Priority 3 - 4 business days | $40 | n/a | $55 | n/a |
| Express 1 - 2 business days | $55 | n/a | n/a | n/a |
The HousePlanShop, LLC (THPS) delivers an outstanding design collection composed of many of the top-selling house plans created by several leading residential designers and architects throughout the United States and Canada. We know building a new home is exciting! Choosing the right house plan is one of the first and most important steps in the building process. However, we understand our customers do not always have time to visit several house plan websites or page through numerous catalogs and brochures. So, we have done quite a bit of work for you! We believe BIGGER is not always BETTER. We have already eliminated the less popular designs, so our customers will not waste time sorting through all of them. This saves valuable time for our customers that can now be spent moving forward with the building process.
By publishing house plans that are the best of the best along with some unique plans that might not be found elsewhere, we provide our customers with a manageable collection of house plans from which to choose. Additionally, we offer various ways to search our house plan collection including a Plan Search tool and an opportunity to browse all Architectural Plan Styles, New House Plans, a Photo Collection, and Current Trends. THPS offers a variety of services and special features to help you with the house plan buying experience such as our Favorites feature, Modification Service, and Resource Section. Finally, THPS delivers top-notch customer service. Our staff has been in the stock house plan business and serving the public for over 50 years. We are committed to providing an exceptional collection of house plans and excellent service as we help you begin your home building journey.
Are you sure you want to perform this action?