Modern Farmhouse Plan, 097H-0070

097H-0070
Reverse All Images
All images are copyrighted by our designers. Photos may reflect modifications made by the builder/homeowner.

Additional $395 cost for walkout basement foundation change, please call for availability. 

Heated Square Feet
First Floor 2742
Total 2742
Unheated Square Feet
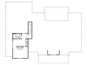
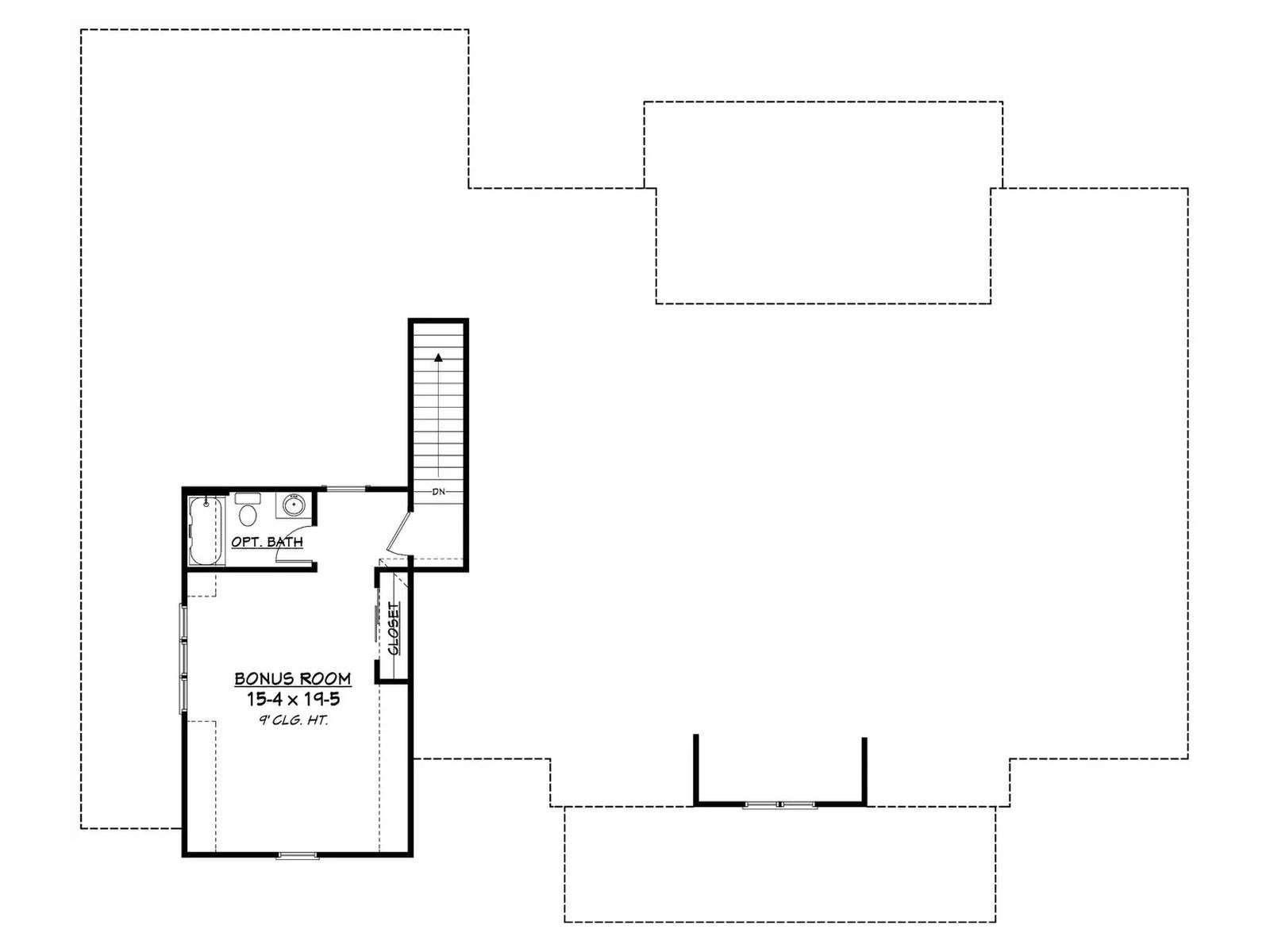
Bonus 433
Garage 563
Porch(es) 571
Storage 85
Bedrooms 4
Full Bathrooms 3
Half Bathrooms 1
Width 76 ft. 8 in.
Depth 61 ft. 10 in.
Ceiling Height
First Floor 10 ft. 0 in.
Roof Pitch 9/12 Primary
Roof Pitch 12/12 Secondary
Foundation Options
  • Basement
  • Crawl Space
  • Slab
Exterior Wall Options
  • 2x4
  • 2x6
Kitchen Features
  • Eating/Snack bar
  • Island
  • Walk-in Pantry
  • Breakfast area/nook
Bedroom Features
  • Main floor master bedroom
  • Walk-in closet
  • Split bedrooms
Interior Features
  • Vaulted/volume ceiling
  • Bonus room/future room
  • Laundry
  • Open floor plan
  • Great room
Exterior Features
  • Covered front porch
  • Covered rear porch
Special Features
  • Fireplace/Woodstove
Garage Features
  • Side-entry
  • Two car
  • Workshop/storage

Additional $395 cost for walkout basement foundation change, please call for availability. 

Purchased as PDF or CAD file

PDF and CAD files are delivered by email, and have no shipping and handling cost.

Purchased as paper plans
* Scroll right to view table
Continental US Canada AK/HI *International
Regular 8 - 12 business days $30 $60 $100 n/a
Priority 3 - 4 business days $45 n/a n/a n/a
Express 1 - 2 business days n/a n/a n/a n/a
Info

There are no reviews

View more
Add your review

097H-0070 More Plans by
This Designer

Want to modify this plan?

Please submit your requested changes, and our team will email a free modification quote to you within 1 to 3 business days.

Modify this Plan

Starting at

$2,940.00

Additional Options

A general listing of the quantities and sizes of materials needed for construction of your project. A general listing of the quantities and sizes of materials needed for construction of your project. This tool aids your builder in the estimating process. A material list cannot be sold without the simultaneous or prior purchase of a plan package of the same plan number. NOTE: Material lists only include materials for the base plan offered with the no charge foundation and wall framing options. The materials for alternate wall framing and foundation options available for an extra charge will not be included in the material list. [less] [more]

One-time surcharge for customers wanting to build the structure in reverse. All sets of construction One-time surcharge for customers wanting to build the structure in reverse. All sets of construction drawings in your plan package will come in full reverse essentially flipping the floor plan from left to right with all text, symbols, and notes reading correctly, rather than mirrored. Your order will be fulfilled in right reading reverse format only. The standard format of the construction drawings will not be included with your order. [less] [more]