There are no reviews
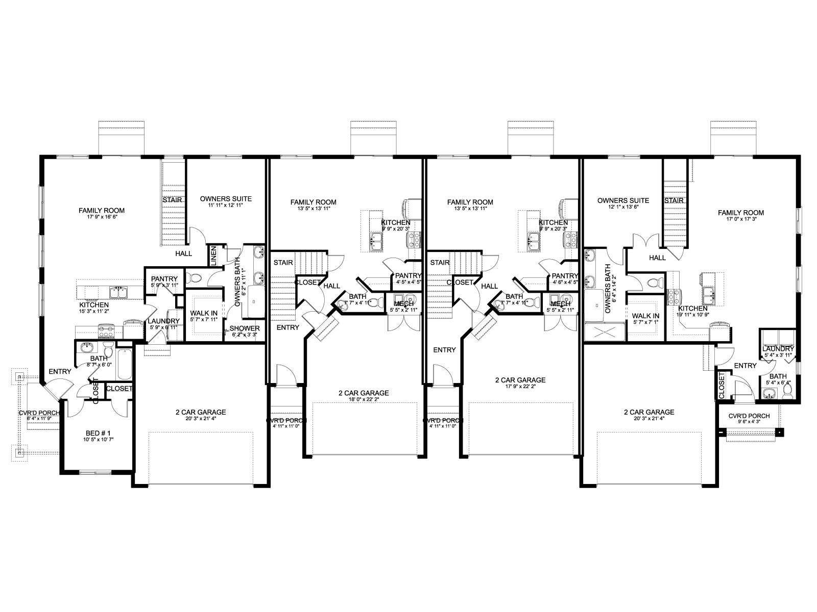
Baeza 4-Plex: 5,469 SF above ground, 10 bedrooms, 7 full baths, 3 half baths, and 4 two-car garages.
Breakdown of plan qualities including square footage and rooms:
◘ Left Unit has 1,270 SF heated downstairs, 2 bedrooms, and 2 full baths. No second floor. Basement adds 1,273 SF, 2 bedrooms, and 1 full bath. Garage adds 454 SF. Side porch adds 210 SF.
◘ Right Unit has 1,097 SF heated downstairs, 1 bedroom, 1 full bath, and 1 half bath. No second floor. Basement adds 1,103 SF, 1 bedroom, and 1 full bath. Garage adds 458 SF. Porch adds 50 SF.
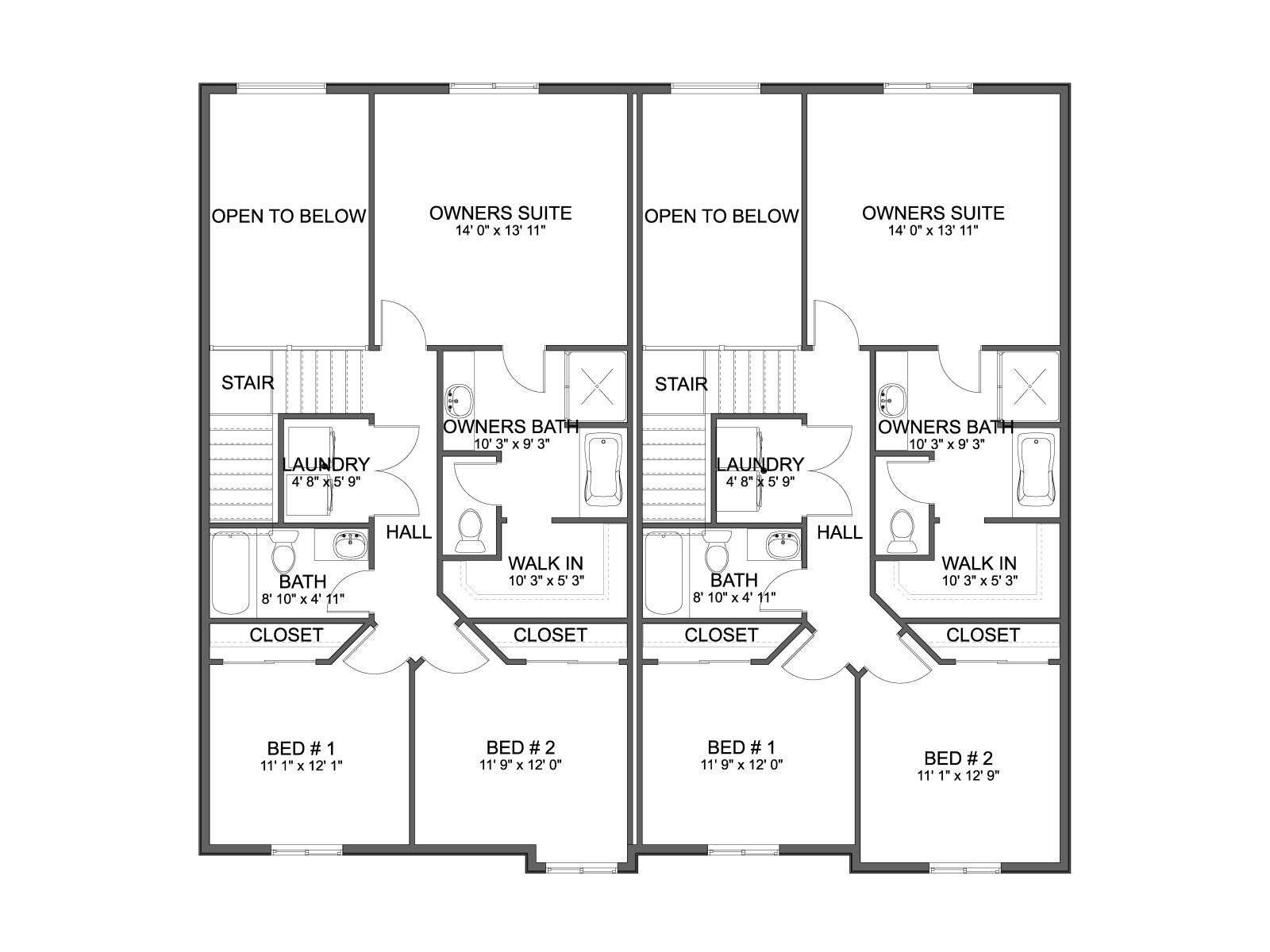
◘Center Units have 655 SF heated downstairs, no bedrooms, and 1 half bath. Second floor adds 892 SF, 3 bedrooms, and 2 full baths. Basement adds 664 SF, and 1 full bath. Garage adds 402 SF. Front porches are 38 SF each.
THE SQUARE FOOTAGE AND ROOM COUNTS BELOW DETAIL WHAT CAN BE FOUND IN ONE INDIVIDUAL UNIT.
| Heated Square Feet | |
| First Floor | 655 |
| Second Floor | 892 |
| Basement Level | 664 |
| Total | 1547 |
| Unheated Square Feet | |
| Garage | 402 |
| Porch(es) | 38 |
| Bedrooms | 3 |
| Full Bathrooms | 2 |
| Half Bathrooms | 1 |
| Width | 117 ft. 0 in. |
| Depth | 51 ft. 0 in. |
| Approximate Height | 34 ft. 3 in. |
| Ceiling Height | |
| First Floor | 9 ft. 0 in. |
| Second Floor | 8 ft. 0 in. |
| Lower Level | 8 ft. 0 in. |
| Roof Pitch | 8/12 Primary |
| Roof Pitch | 7/12 Secondary |
| Roof Framing |
|
| Foundation Options |
|
| Exterior Wall Options |
|
| Kitchen Features |
|
| Bedroom Features |
|
| Interior Features |
|
| Exterior Features |
|
| Special Features |
|
| Garage Features |
|
Baeza 4-Plex: 5,469 SF above ground, 10 bedrooms, 7 full baths, 3 half baths, and 4 two-car garages.
Breakdown of plan qualities including square footage and rooms:
◘ Left Unit has 1,270 SF heated downstairs, 2 bedrooms, and 2 full baths. No second floor. Basement adds 1,273 SF, 2 bedrooms, and 1 full bath. Garage adds 454 SF. Side porch adds 210 SF.
◘ Right Unit has 1,097 SF heated downstairs, 1 bedroom, 1 full bath, and 1 half bath. No second floor. Basement adds 1,103 SF, 1 bedroom, and 1 full bath. Garage adds 458 SF. Porch adds 50 SF.
◘Center Units have 655 SF heated downstairs, no bedrooms, and 1 half bath. Second floor adds 892 SF, 3 bedrooms, and 2 full baths. Basement adds 664 SF, and 1 full bath. Garage adds 402 SF. Front porches are 38 SF each.
THE SQUARE FOOTAGE AND ROOM COUNTS BELOW DETAIL WHAT CAN BE FOUND IN ONE INDIVIDUAL UNIT.
PDF and CAD files are delivered by email, and have no shipping and handling cost.
| Continental US | Canada | AK/HI | *International | |
|---|---|---|---|---|
| Regular 8 - 12 business days | $25 | $45 | n/a | n/a |
| Priority 3 - 4 business days | $40 | $90 | $55 | n/a |
| Express 1 - 2 business days | $55 | n/a | n/a | n/a |
The HousePlanShop, LLC (THPS) delivers an outstanding design collection composed of many of the top-selling house plans created by several leading residential designers and architects throughout the United States and Canada. We know building a new home is exciting! Choosing the right house plan is one of the first and most important steps in the building process. However, we understand our customers do not always have time to visit several house plan websites or page through numerous catalogs and brochures. So, we have done quite a bit of work for you! We believe BIGGER is not always BETTER. We have already eliminated the less popular designs, so our customers will not waste time sorting through all of them. This saves valuable time for our customers that can now be spent moving forward with the building process.
By publishing house plans that are the best of the best along with some unique plans that might not be found elsewhere, we provide our customers with a manageable collection of house plans from which to choose. Additionally, we offer various ways to search our house plan collection including a Plan Search tool and an opportunity to browse all Architectural Plan Styles, New House Plans, a Photo Collection, and Current Trends. THPS offers a variety of services and special features to help you with the house plan buying experience such as our Favorites feature, Modification Service, and Resource Section. Finally, THPS delivers top-notch customer service. Our staff has been in the stock house plan business and serving the public for over 50 years. We are committed to providing an exceptional collection of house plans and excellent service as we help you begin your home building journey.
Are you sure you want to perform this action?