Contemporary Home Plan, 062H-0622

062H-0623
Reverse All Images More Images
All images are copyrighted by our designers. Photos may reflect modifications made by the builder/homeowner.

Basement includes 644 unheated SF designated for Mechanical/Storage.

Heated Square Feet
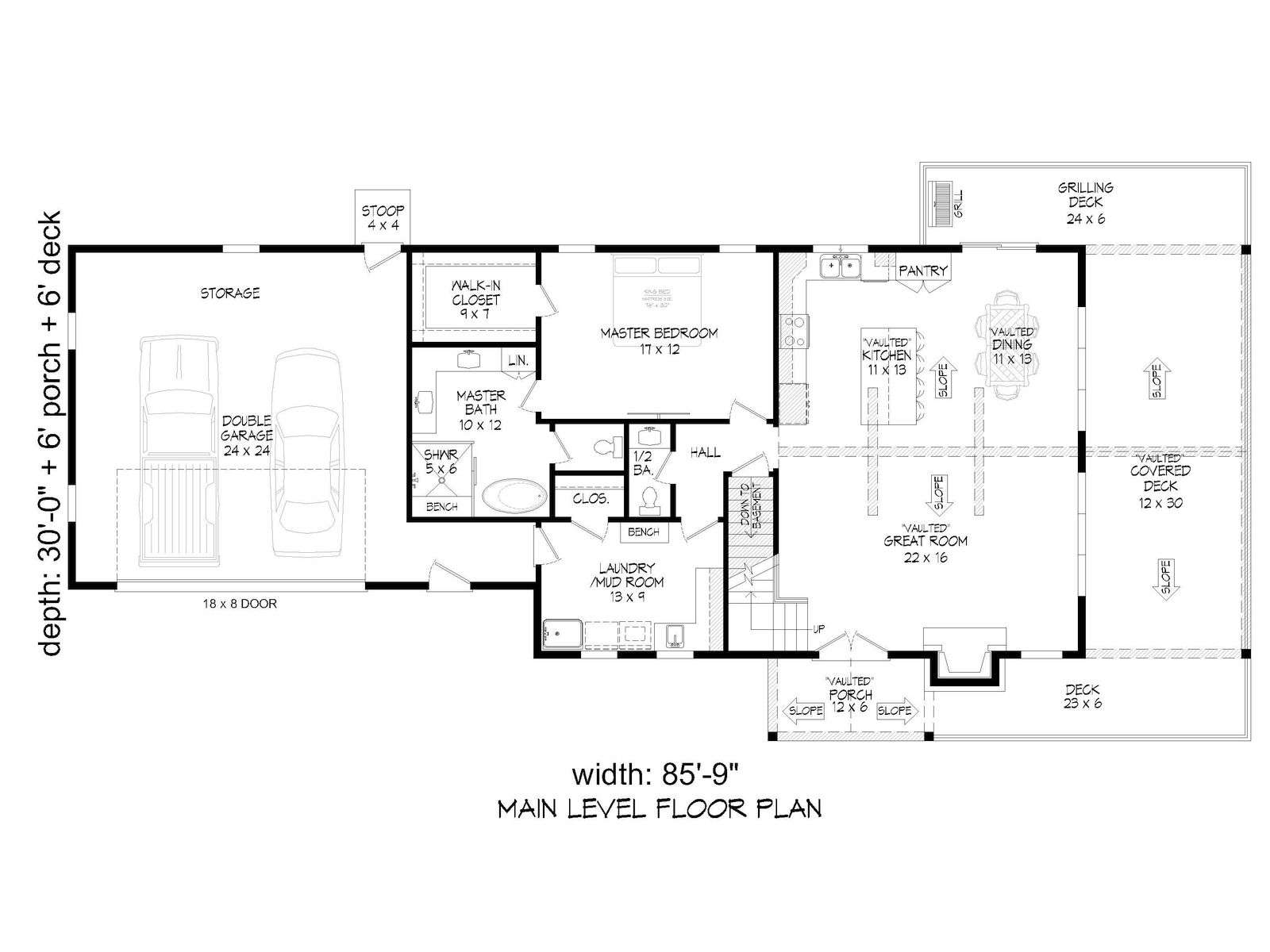
First Floor 1395
Second Floor 729
Basement Level 742
Total 2124
Unheated Square Feet
Bonus 289
Deck/Balcony 370
Garage 659
Porch(es) 432
Storage 644
Bedrooms 3
Full Bathrooms 2
Half Bathrooms 1
Width 85 ft. 9 in.
Depth 42 ft. 0 in.
Approximate Height 26 ft. 2 in.
Ceiling Height
First Floor 9 ft. 0 in.
Second Floor 9 ft. 0 in.
Lower Level 9 ft. 10 in.
Roof Pitch 12/12 Primary
Roof Pitch 4/12 Secondary
Roof Framing
  • Stick
Garage Door Size(s) 18x8
Foundation Options
  • Basement
  • Crawl Space
  • Slab
  • Walkout Basement
Exterior Wall Options
  • 2x6
Kitchen Features
  • Eating/Snack bar
  • Island
Bedroom Features
  • Walk-in closet
  • Main floor master bedroom
Interior Features
  • Bonus room/future room
  • Great room
  • Laundry
  • Loft/balcony
  • Open floor plan
  • Vaulted/volume ceiling
Exterior Features
  • Covered front porch
  • Covered side porch
  • Grilling porch/summer kitchen
  • Deck
Special Features
  • Fireplace/Woodstove
Garage Features
  • Front-entry
  • Two car

Basement includes 644 unheated SF designated for Mechanical/Storage.

Purchased as PDF or CAD file

PDF and CAD files are delivered by email, and have no shipping and handling cost.

Purchased as paper plans
* Scroll right to view table
Continental US Canada AK/HI *International
Regular 8 - 12 business days $25 n/a $55 n/a
Priority 3 - 4 business days $40 n/a $65 n/a
Express 1 - 2 business days $55 n/a n/a n/a
Info

There are no reviews

View more
Add your review

062H-0623 More Plans by
This Designer

Want to modify this plan?

Please submit your requested changes, and our team will email a free modification quote to you within 1 to 3 business days.

Modify this Plan

Starting at

$2,600.00

Additional Options

Complete copy of the construction drawing. Since our blueprints cannot be photocopied, extra sets Complete copy of the construction drawing. Since our blueprints cannot be photocopied, extra sets are available for purchase within 90 days of the original house plan purchase. [less] [more]

A general listing of the quantities and sizes of materials needed for construction of your project. A general listing of the quantities and sizes of materials needed for construction of your project. This tool aids your builder in the estimating process. A material list cannot be sold without the simultaneous or prior purchase of a plan package of the same plan number. NOTE: Material lists only include materials for the base plan offered with the no charge foundation and wall framing options. The materials for alternate wall framing and foundation options available for an extra charge will not be included in the material list. [less] [more]

One-time surcharge for customers wanting to build the structure in reverse. All sets of construction One-time surcharge for customers wanting to build the structure in reverse. All sets of construction drawings in your plan package will come in full reverse essentially flipping the floor plan from left to right with all text, symbols, and notes reading correctly, rather than mirrored. Your order will be fulfilled in right reading reverse format only. The standard format of the construction drawings will not be included with your order. [less] [more]