Contemporary Home Plan, 062H-0619

062H-0619
Reverse All Images More Images
All images are copyrighted by our designers. Photos may reflect modifications made by the builder/homeowner.
Heated Square Feet
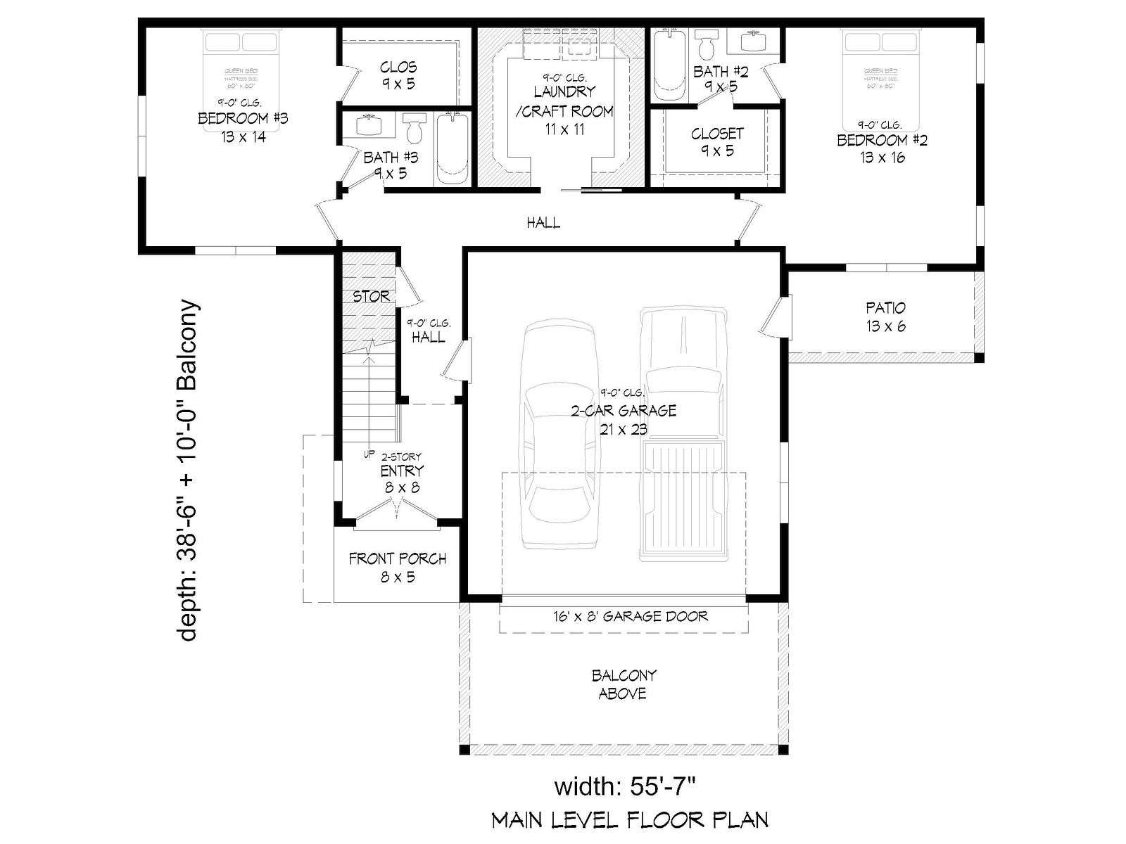
First Floor 1035
Second Floor 1265
Total 2300
Unheated Square Feet
Deck/Balcony 260
Garage 508
Patio/Terrace/Lanai 77
Porch(es) 43
Bedrooms 3
Full Bathrooms 3
Half Bathrooms 1
Width 55 ft. 7 in.
Depth 48 ft. 6 in.
Approximate Height 29 ft. 3 in.
Ceiling Height
First Floor 9 ft. 0 in.
Second Floor 9 ft. 0 in.
Roof Pitch 6/12 Primary
Roof Framing
  • Stick
Garage Door Size(s) 16x8
Foundation Options
  • Basement
  • Crawl Space
  • Slab
  • Walkout Basement
Exterior Wall Options
  • 2x4
  • 2x6
Kitchen Features
  • Island
  • Eating/Snack bar
  • Walk-in Pantry
Bedroom Features
  • Upstairs master bedroom
  • Walk-in closet
  • Split bedrooms
Interior Features
  • Family room
  • Laundry
Exterior Features
  • Covered front porch
  • Balcony
Garage Features
  • Front-entry
  • Drive-under
  • Two car
No description.
Purchased as PDF or CAD file

PDF and CAD files are delivered by email, and have no shipping and handling cost.

Purchased as paper plans
* Scroll right to view table
Continental US Canada AK/HI *International
Regular 8 - 12 business days $25 n/a $55 n/a
Priority 3 - 4 business days $40 n/a $65 n/a
Express 1 - 2 business days $55 n/a n/a n/a
Info

There are no reviews

View more
Add your review

062H-0619 More Plans by
This Designer

Want to modify this plan?

Please submit your requested changes, and our team will email a free modification quote to you within 1 to 3 business days.

Modify this Plan

Starting at

$2,100.00

Additional Options

Complete copy of the construction drawing. Since our blueprints cannot be photocopied, extra sets Complete copy of the construction drawing. Since our blueprints cannot be photocopied, extra sets are available for purchase within 90 days of the original house plan purchase. [less] [more]

A general listing of the quantities and sizes of materials needed for construction of your project. A general listing of the quantities and sizes of materials needed for construction of your project. This tool aids your builder in the estimating process. A material list cannot be sold without the simultaneous or prior purchase of a plan package of the same plan number. NOTE: Material lists only include materials for the base plan offered with the no charge foundation and wall framing options. The materials for alternate wall framing and foundation options available for an extra charge will not be included in the material list. [less] [more]

One-time surcharge for customers wanting to build the structure in reverse. All sets of construction One-time surcharge for customers wanting to build the structure in reverse. All sets of construction drawings in your plan package will come in full reverse essentially flipping the floor plan from left to right with all text, symbols, and notes reading correctly, rather than mirrored. Your order will be fulfilled in right reading reverse format only. The standard format of the construction drawings will not be included with your order. [less] [more]